TEMİZLEME GRUBU
AYIKLAMA GRUBU
SINIFLANDIRMA
KABUK SOYUCULAR
ÇUVALLAMA VE PAKETLEME
YAĞLAMA VE İLAÇLAMA
TAŞIMA
TOZ KONTROL
FISTIK GRUBU
BADEM GRUBU


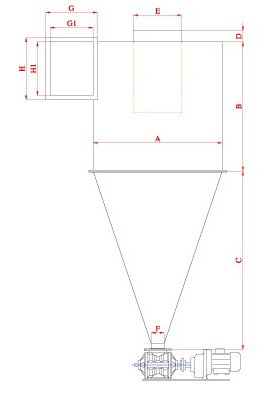
Toz Silikonu
Temizleme ünitelerinde kullanılır.Aspiratörlerin çıkışına bağlanır.Havanın içindeki tozların ayrıştırılmasında kullanılır.Üst ve alt gövde olarak iki parçadan oluşur.Montajı ve demontajı kolay bir makinedir.
Ürün açıklaması
Ön temizleme ve boyama ünitelerinin birleşiminden meydana gelmiştir.Posta elevatörü yardımı ile eleme teknesine dökülen üründe bulunan kirleticiler ve toz parçacıkları uzaklaştırılır. Ürün, aspiratör odasının yarattığı vakum kullanılarak, çöp, saman, kavuz. vs gibi maddelerden temizlenir. Temizlendikten sonra ürün, ikinci elevatör olan orta elevatör yardımıyla boylama ünitelerine sevk edilir. Ürün, maksimum dört farklı boya ayrılabilir. Eksantrik sistemi sayesinde, üründe en iyi elde edilir. Elek altı temizleme sistemi gidip gelen fırçalardan oluştuğu için, eleklerde tıkanma meydana gelmez..
Ürün Detayı
Ürün Dokümanları



